-
Segistid
4000+
Kõik segistid
- MAGMA segistid
- Segistid valamu jaoks
- Dušisegistid
- Köögisegistid
- Vannitoa segistid
- Termostaadi segistid
- Bidee segistid
- Sisseehitatud segistid
- Erinevad segistid
- Segistid ühe vee jaoks
- Aeraator
- MAGMA bideesegisti
- MAGMA segistid valamu jaoks
- Segistid valamu jaoks
- Bidee segistid
- Erinevad segistid
SegistidSegistid - Valamud
-
Dušikabiinid
- Vannid
- WC potid ja bidee
-
Aksessuaarid
ja peeglid
HELP programmKorvid ja konteinerid
- Mööbel
- Veevarustus
- Müügil kuni 60%
-
Avalikud ruumid
& help
Sisekontrolli masinad
- Kataloog
Eesti keel
EUR €

Your cart will total 61.8 points that can be converted into a voucher of 6,18 €.
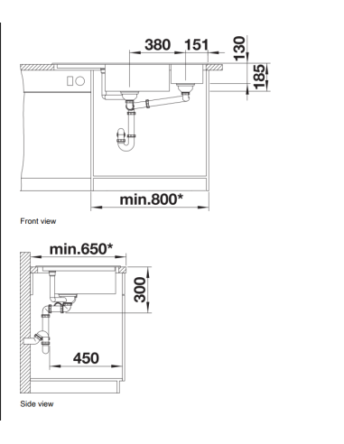
- Ergonoomiliselt paigutatud kauss, lisakauss ja äravooluava
- Avar kauss pika diagonaaliga nt praepannide hõlpsaks pesemiseks
- Kvaliteetsed funktsioonid InFino äravoolusüsteemiga ja kaugjuhtimispuldiga – elegantselt integreeritud ja äärmiselt lihtne puhastada
- Lisakauss perforeeritud roostevabast terasest sõelaga
Multifunktsionaalne roostevabast terasest sõel
Äravooluava komplekt ruumisäästliku toruga
2 x 3 ½-tolline InFino korvsõel koos äravoolu kaugjuhtimispuldiga (pöördlüliti) põhikausi jaoks
- Krāsa
- melns
- Garantija
- 2 aastat
- Materiāls
- mākslīgais marmors
- Montāža
- iebūvējama no augšas
- Virsma
- matēta
- Dizains
- modernā stila
- Forma
- daudzstūra
- Produkta tips
- Virtuves izlietnes
- Spārns
- ar spārnu
523656